Cultural · Tsim Sha Tsui

Hong Kong Cultural Centre

香港文化中心

Also known as: HKCC

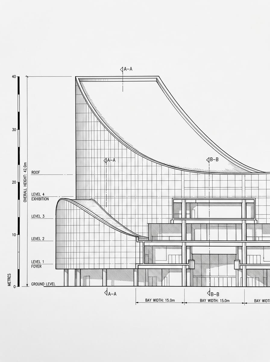
Architectural elevation drawing of Hong Kong Cultural Centre, Tsim Sha Tsui, Hong Kong

Plate 122 · Elevation drawing · 3:4

Building Data

Year

1989

Height

Floors

5

Below grade

2

Architect

Government Architect

Style

Postmodernist

Heritage

Engineer

Notes

Windowless pink-tiled performing arts venue on the TST waterfront. Controversial but iconic design

Notable Features

Windowless pink-tiled design; controversial but iconic; harbour-facing

Ownership & Operations

Owner

HKSAR Government

Parent Co.

LCSD

Developer

Hong Kong Government

Operator

LCSD

Mgmt Co.

LCSD

Key tenants: Concert Hall · Grand Theatre

Contact

Phone

(852) 2734 2009

Email

Website

https://www.lcsd.gov.hk/CE/CulturalService/HKCC

Leasing

Location

Address

10 Salisbury Road, Tsim Sha Tsui

MTR

Tsim Sha Tsui

22.293500°N, 114.170900°E